
















Location
The Laurels is situated within a quiet and desirable residential area of Tullibody, offering a convenient setting for a range of buyers. The town provides a selection of local amenities including shops, supermarkets, schools and leisure facilities, while nearby Alloa and Stirling offer a wider range of retail, dining and transport options. For families, there are a number of schooling options available, including St Bernadette’s RC Primary School and St Modan’s High School. Tullibody also benefits from excellent road links to the central belt, making it ideal for commuters. With easy access to local parks and scenic walking routes, The Laurels offers a great balance of everyday convenience and outdoor living.
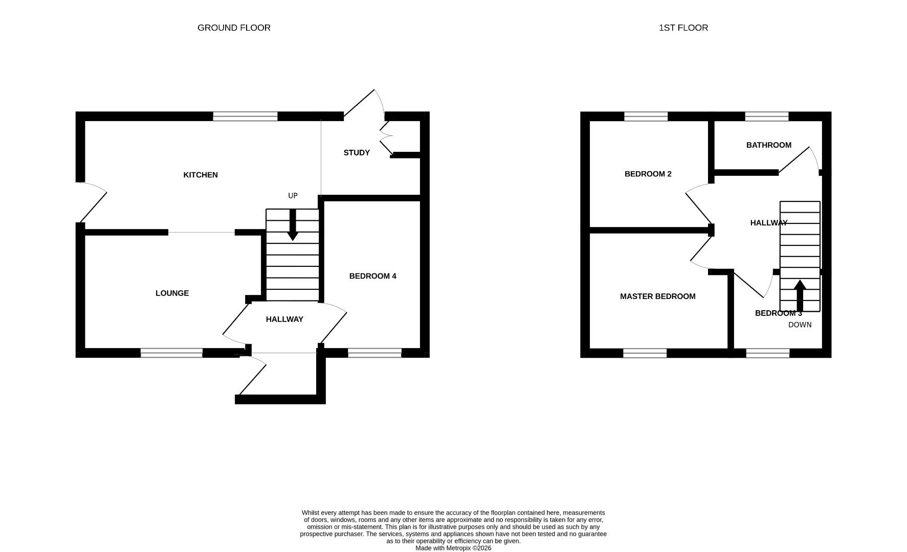
Lounge 4.72 x 3.47 (15’5″ x 11’4″)
Kitchen 4.44 x 2.56 (14’6″ x 8’4″)
Study 2.97 x 2.14 (9’8″ x 7’0″)
Master bedroom 3.75 x 2.48 (12’3″ x 8’1″)
Bedroom 2 3.5 x 2.48 (11’5″ x 8’1″)
Bedroom 3 2.58 x 1.83 (8’5″ x 6’0″)
Bedroom 4 5.19 x 2.34 (17’0″ x 7’8″)
Bathroom 1.82 x 1.73 (5’11” x 5’8″)
Home report
The home report is available upon request.
Fixtures & fittings
All carpets, floor coverings, light fittings and blinds are included in the sale.
Misdescriptions Act
While these particulars have been carefully compiled and are believed to be accurate, no warranty is given in this respect and potential purchasers should satisfy themselves as to any points arising therefrom. None of the items included in the sale of working or running nature such as central heating installation or mechanical or electrical equipment have been tested by us and no warranty is given in this respect and potential purchasers should satisfy themselves as to any points arising therefrom. Any photographs used are purely illustrative and may demonstrate only the surroundings. They are not therefore taken as indicative of the extent of the property, or that the photograph is taken from within the boundaries of the property, or of what is included in the sale.
Property Misdescriptions Act 1991.
While these particulars have been carefully compiled and are believed to be accurate by O’Malley Property Limited, no warranty is given in this respect and potential purchasers should satisfy themselves as to any points arising therefrom. None of the items included in the sale of working or running nature such as central heating installation or mechanical or electrical equipment have been tested by us and no warranty is given in this respect and potential purchasers should satisfy themselves as to any points arising therefrom. Any photographs used are purely illustrative and may demonstrate only the surroundings. They are not therefore taken as indicative of the extent of the property, or that the photograph is taken from within the boundaries of the property, or of what is included in the sale.