
























Location
The Glen Street is conveniently located close to a wide range of local amenities, including shops, supermarkets, cafés, and everyday services, all within easy reach to support day-to-day living. The area benefits from well-regarded local schooling, with primary education available nearby and secondary provision at Lornshill Academy, making it an attractive option for families.
Excellent public transport links are available, with regular bus services connecting Tullibody to Alloa, Stirling, and surrounding towns, as well as straightforward access to main road networks for commuters. The location also offers access to nearby parks, green spaces, and scenic walks, contributing to a balanced lifestyle that combines convenience with outdoor leisure opportunities.
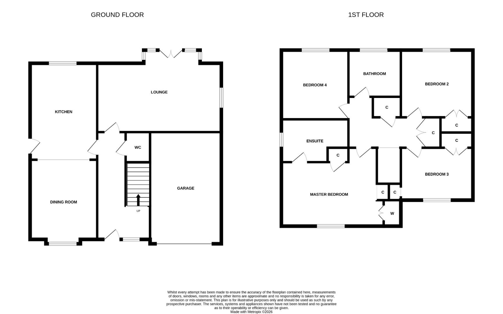
Lounge 4.5m x 3.67m (14’9″ x 12’0″)
Kitchen/Dining 8m x 2.67m (26’2″ x 8’9″)
W.C 1.6m x 0.9m (5’2″ x 2’11”)
Master Bedroom 4m x 3.9m (13’1″ x 12’9″)
En-suite 2.2m x 1.36m (7’2″ x 4’5″)
Bedroom 2 3m x 2.607m (9’10” x 8’6″)
Bedroom 3 2.27m x 2.23m (7’5″ x 7’3″)
Bedroom 4 2.74m x 2.89m (8’11” x 9’5″)
Main Bathroom 2m x 1.86m (6’6″ x 6’1″)
Home Report
The home report is available upon request. Contact our team today.
Fixtures & Fittings
All fitted carpets, floor coverings and integrated appliances are included with the sale.
Misdescription Act
While these particulars have been carefully compiled and are believed to be accurate, no warranty is given in this respect and potential purchasers should satisfy themselves as to any points airsing therefrom. None of the items included in the sale of working or running nature such as central heating installation or mechanical or electrical equipment have been tested by us and no warranty is given in this respect and potential purchasers should satisfy themselves as to any points arising therefrom. Any photographs used are purely illustrative and may demostrate only the surroundings. They are not therefore taken as indicative of the extent of the property, or that the photograph is taken from within the boundaries of the property, or of what is included in the sale.
Property Misdescriptions Act 1991.
While these particulars have been carefully compiled and are believed to be accurate by O’Malley Property Limited, no warranty is given in this respect and potential purchasers should satisfy themselves as to any points arising therefrom. None of the items included in the sale of working or running nature such as central heating installation or mechanical or electrical equipment have been tested by us and no warranty is given in this respect and potential purchasers should satisfy themselves as to any points arising therefrom. Any photographs used are purely illustrative and may demonstrate only the surroundings. They are not therefore taken as indicative of the extent of the property, or that the photograph is taken from within the boundaries of the property, or of what is included in the sale.