











Location
Standalane is located within the popular town of Kincardine, offering a convenient setting close to local amenities including shops, schools and leisure facilities. The area is well suited for commuters, with excellent road links via the Kincardine Bridge providing easy access to surrounding towns and the wider central belt.
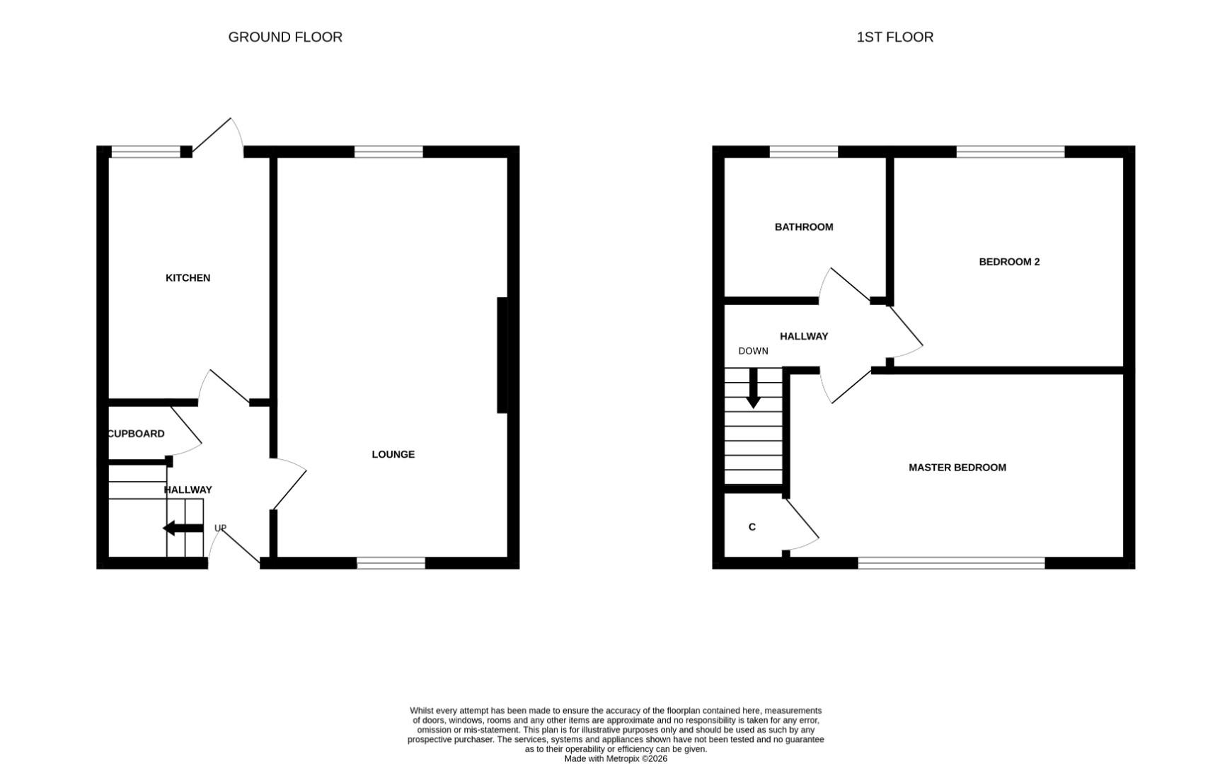
Lounge 6m x 3.5 (19’8″ x 11’5″)
Kitchen 2.5m x 3.67m (8’2″ x 12’0″)
Master bedroom 5m x 2.82m (16’4″ x 9’3″)
Bedroom 2 3.5m x 3.2m (11’5″ x 10’5″)
Shower room 2.5m x 2.18m (8’2″ x 7’1″)
Home report
The home report is available upon request.
Fixtures and fittings
All carpets, floor coverings, light fittings and blinds are included in the sale.
Misdescriptions Act
While these particulars have been carefully compiled and are believed to be accurate, no warranty is given in this respect and potential purchasers should satisfy themselves as to any points airsing therefrom. None of the items included in the sale of working or running nature such as central heating installation or mechanical or electrical equipment have been tested by us and no warranty is given in this respect and potential purchasers should satisfy themselves as to any points arising therefrom. Any photographs used are purely illustrative and may demostrate only the surroundings. They are not therefore taken as indicative of the extent of the property, or that the photograph is taken from within the boundaries of the property, or of what is included in the sale.
Property Misdescriptions Act 1991.
While these particulars have been carefully compiled and are believed to be accurate by O’Malley Property Limited, no warranty is given in this respect and potential purchasers should satisfy themselves as to any points arising therefrom. None of the items included in the sale of working or running nature such as central heating installation or mechanical or electrical equipment have been tested by us and no warranty is given in this respect and potential purchasers should satisfy themselves as to any points arising therefrom. Any photographs used are purely illustrative and may demonstrate only the surroundings. They are not therefore taken as indicative of the extent of the property, or that the photograph is taken from within the boundaries of the property, or of what is included in the sale.