














Location
Jarvie Court is situated in the well established residential area of Redding, offering a peaceful and family friendly environment while still being close to everyday conveniences. The location benefits from easy access to local shops, schooling options and recreational facilities, with Falkirk town centre just a short distance away for a wider range of amenities, dining and transport links. Excellent road connections, including routes to the M9, make commuting to Stirling, Edinburgh and Glasgow straightforward, while nearby bus services add further convenience.
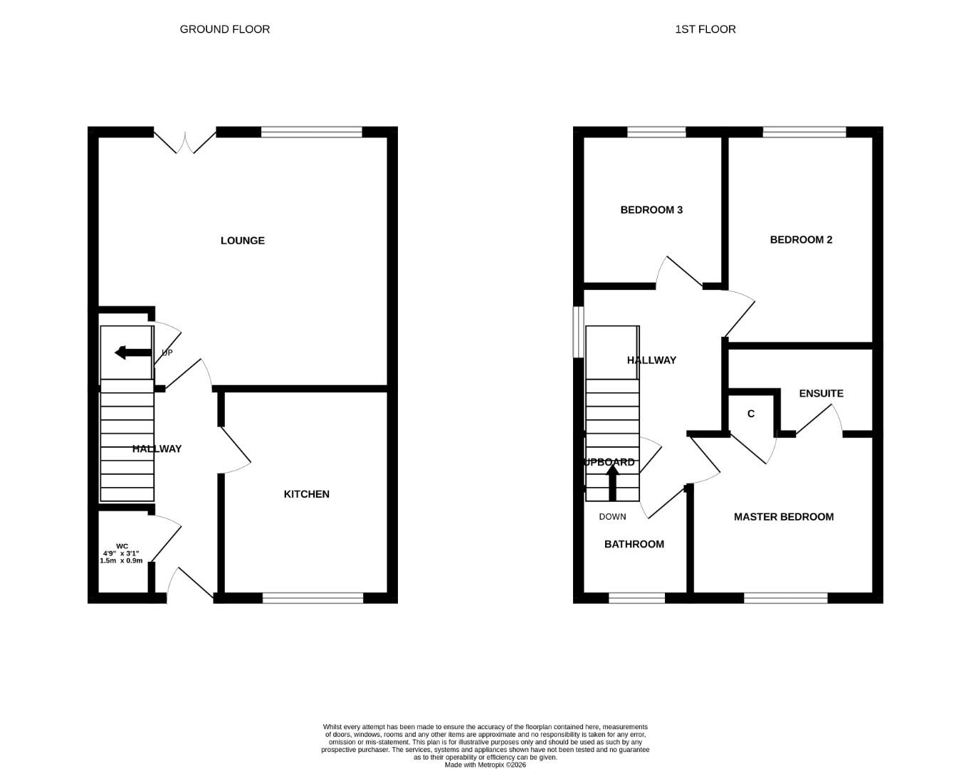
Lounge 4.56m x 4.13m (14’11” x 13’6″ )
Kitchen 3.32m x 2.47m (10’10” x 8’1″)
W/C 1.85m x 0.85m (6’0″ x 2’9″ )
Master Bedroom 2.71m x 2.53m (8’10” x 8’3″)
En-suite 2.35m x 1.35m ( 7’8″ x 4’5″ )
Second Bedroom 2.37m x 3.03m (7’9″ x 9’11” )
Third Bedroom 2.23m x 2.07m (7’3″ x 6’9″)
Bathroom 1.84m x 1.7m (6’0″ x 5’6″ )
Home Report
The home report is available upon request.
Fixtures & Fittings
All carpets, floor coverings, light fittings and window dressings are included in the sale
Misdescriptions Act
While these particulars have been carefully compiled and are believed to be accurate, no warranty is given in this respect and potential purchasers should satisfy themselves as to any points arising therefrom. None of the items included in the sale of working or running nature such as central heating installation or mechanical or electrical equipment have been tested by us and no warranty is given in this respect and potential purchasers should satisfy themselves as to any points arising therefrom. Any photographs used are purely illustrative and may demonstrate only the surroundings. They are not therefore taken as indicative of the extent of the property, or that the photograph is taken from within the boundaries of the property, or of what is included in the sale.
Property Misdescriptions Act 1991.
While these particulars have been carefully compiled and are believed to be accurate by O’Malley Property Limited, no warranty is given in this respect and potential purchasers should satisfy themselves as to any points arising therefrom. None of the items included in the sale of working or running nature such as central heating installation or mechanical or electrical equipment have been tested by us and no warranty is given in this respect and potential purchasers should satisfy themselves as to any points arising therefrom. Any photographs used are purely illustrative and may demonstrate only the surroundings. They are not therefore taken as indicative of the extent of the property, or that the photograph is taken from within the boundaries of the property, or of what is included in the sale.