















Location
Hodgson Crescent is situated in a pleasant and well established residential area of Alva, offering a peaceful and family friendly environment. The location benefits from being close to a range of local amenities including shops, cafés, schools and leisure facilities, while also providing easy access to scenic countryside and outdoor walks, particularly around the Ochil Hills. Commuting is straightforward with good road links nearby and easy access to public transport, making connections to Alloa, Stirling and surrounding towns convenient. With its quiet setting and strong community feel, Hodgson Crescent presents an attractive place to live for families, professionals and downsizers alike.
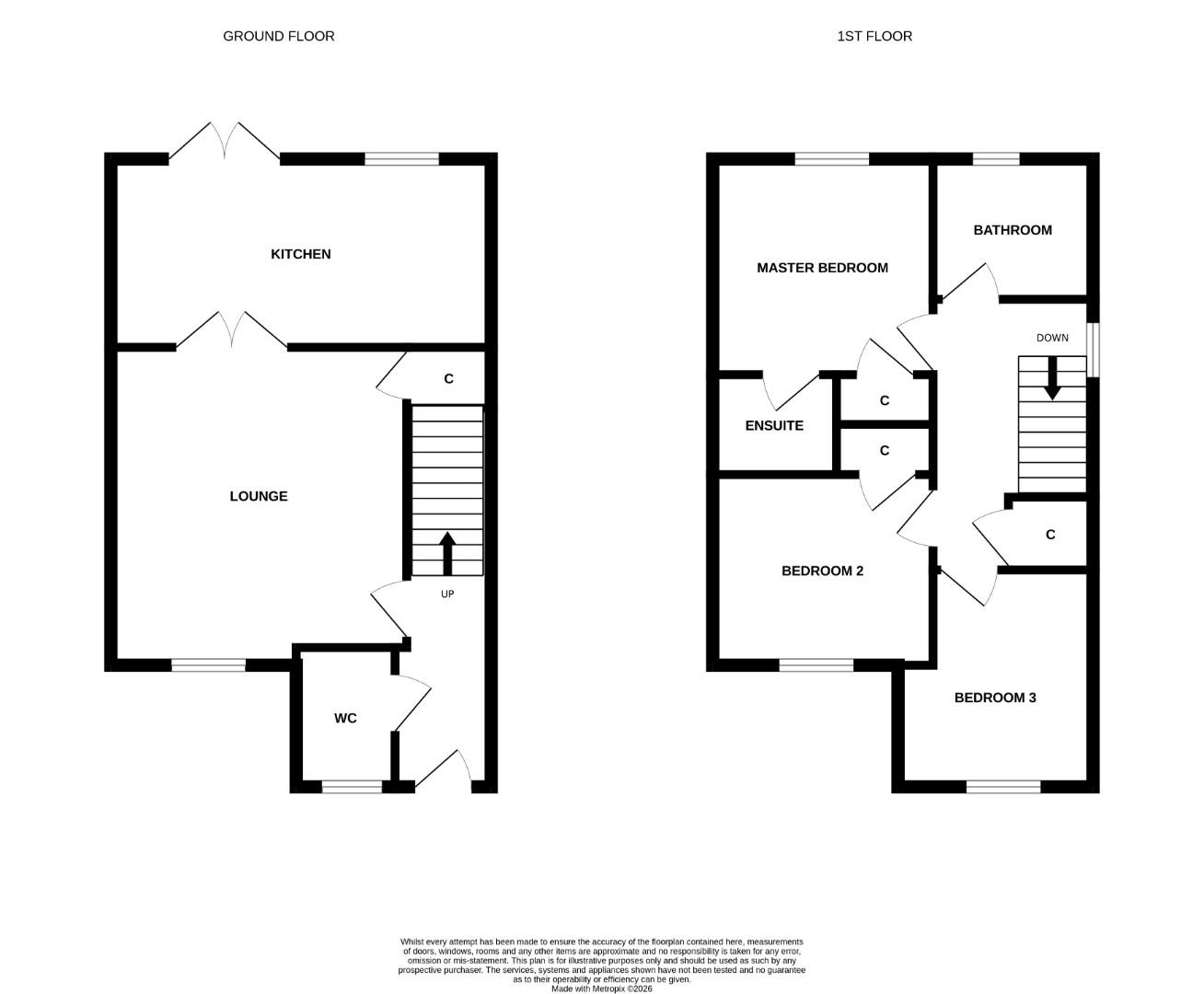
Lounge 3.97m x 4.28m (13’0″ x 14’0″)
Kitchen 5.14m x 2.55m (16’10” x 8’4″)
W/C 1.8m x 1.14m (5’10” x 3’8″)
Master Bedroom 3m x 2.94m (9’10” x 9’7″)
En Suite 1.67m x 1.35m (5’5″ x 4’5″)
Second Bedroom 3m x 2.65m (9’10” x 8’8″)
Third Bedroom 3.07m x 2.58m (10’0″ x 8’5″ )
Bathroom 1.92m x 1.89m (6’3″ x 6’2″)
Home Report
The home report is available upon request.
Fixtures & Fittings
All carpets, floor coverings, light fittings and window dressings are included in the sale
Property Misdescriptions Act 1991.
While these particulars have been carefully compiled and are believed to be accurate, no warranty is given in this respect and potential purchasers should satisfy themselves as to any points airsing therefrom. None of the items included in the sale of working or running nature such as central heating installation or mechanical or electrical equipment have been tested by us and no warranty is given in this respect and potential purchasers should satisfy themselves as to any points arising therefrom. Any photographs used are purely illustrative and may demostrate only the surroundings. They are not therefore taken as indicative of the extent of the property, or that the photograph is taken from within the boundaries of the property, or of what is included in the sale.
Property Misdescriptions Act 1991.
While these particulars have been carefully compiled and are believed to be accurate by O’Malley Property Limited, no warranty is given in this respect and potential purchasers should satisfy themselves as to any points arising therefrom. None of the items included in the sale of working or running nature such as central heating installation or mechanical or electrical equipment have been tested by us and no warranty is given in this respect and potential purchasers should satisfy themselves as to any points arising therefrom. Any photographs used are purely illustrative and may demonstrate only the surroundings. They are not therefore taken as indicative of the extent of the property, or that the photograph is taken from within the boundaries of the property, or of what is included in the sale.