












Location
Tillicoultry is a popular town set at the foot of the Ochil Hills, offering a fantastic balance of scenic surroundings and everyday convenience. The area benefits from a range of local amenities including shops, cafés, supermarkets and well regarded schools, along with access to beautiful walking routes and outdoor activities. Tillicoultry provides excellent transport links to nearby towns such as Alloa and Stirling, as well as easy access to the A91 for travel further afield. With its strong community feel Tillicoultry is an attractive location for a wide range of buyers.
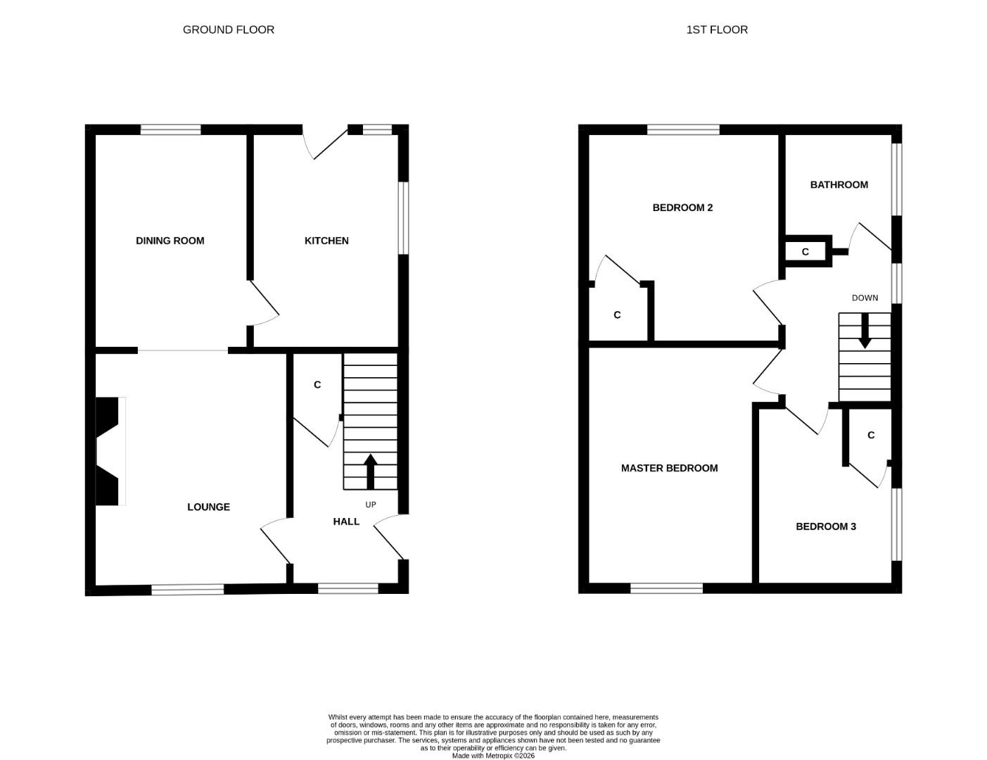
Lounge 4.2m x 3.1m (13’9″ x 10’2″ )
Dining Room 3.4m x 2.6m (11’1″ x 8’6″)
Kitchen 3.4m x 2.3m (11’1″ x 7’6″)
Master Bedroom 4.3m x 2.5m (14’1″ x 8’2″)
Bedroom 2 3.3m x 3m (10’9″ x 9’10”)
Bedroom 3 3.2m x 2.3m (10’5″ x 7’6″)
Bathroom 1.9m x 1.8m (6’2″ x 5’10”)
Garage 8.6m x 3m (28’2″ x 9’10”)
Home Report
The home report is available upon request. Contact our team today.
Fixtures & Fittings
All carpets, floor coverings, light fittings and window furniture are included in the sale.
Miscdescription Act 1991
While these particulars have been carefully compiled and are believed to be accurate, no warranty is given in this respect and potential purchasers should satisfy themselves as to any points arising therefrom. None of the items included in the sale of working or running nature such as central heating installation or mechanical or electrical equipment have been tested by us and no warranty is given in this respect and potential purchasers should satisfy themselves as to any points arising therefrom. Any photographs used are purely illustrative and may demonstrate only the surroundings. They are not therefore taken as indicative of the extent of the property, or that the photograph is taken from within the boundaries of the property, or of what is included in the sale.
Property Misdescriptions Act 1991.
While these particulars have been carefully compiled and are believed to be accurate by O’Malley Property Limited, no warranty is given in this respect and potential purchasers should satisfy themselves as to any points arising therefrom. None of the items included in the sale of working or running nature such as central heating installation or mechanical or electrical equipment have been tested by us and no warranty is given in this respect and potential purchasers should satisfy themselves as to any points arising therefrom. Any photographs used are purely illustrative and may demonstrate only the surroundings. They are not therefore taken as indicative of the extent of the property, or that the photograph is taken from within the boundaries of the property, or of what is included in the sale.