

















Location
Cleuch Avenue is situated within a popular residential area of Tullibody, offering a convenient and familycfriendly setting. The area benefits from close proximity to a range of local amenities including shops, supermarkets and leisure facilities, while nearby Alloa and Stirling provide a wider selection of retail and dining options. For families, the property falls within the catchment area for Abercromby Primary School and Lornshill Academy. Excellent road links make this an ideal location for commuters travelling across the central belt, making Cleuch Avenue a highly desirable place to live.
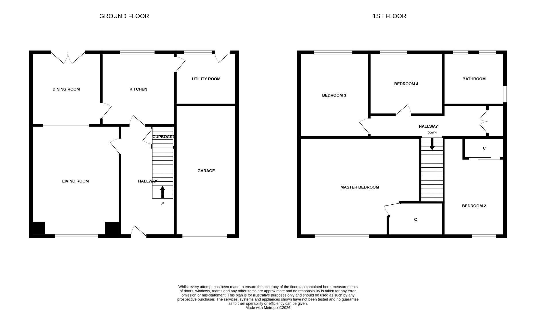
Lounge 4.50m x 3.33m (14’9″ x 10’11”)
Diner 3.00m x 2.50m (9’10” x 8’2″)
Kitchen 3.00m x 2.80m (9’10” x 9’2″)
Utility Room 2.80m x 2.16m (9’2″ x 7’1″)
Master Bedroom 4.40m x 3.87m (14’5″ x 12’8″)
Bedroom 2 4.00m x 2.80m (13’1″ x 9’2″)
Bedroom 3 3.20m x 2.70m (10’5″ x 8’10”)
Bedroom 4 2.70m x 2.20m (8’10” x 7’2″)
Shower Room 1.73m x 2.70m (5’8″ x 8’10”)
Home Report
The home report is available upon request. Contact our team today.
Fixtures & Fittings
All fitted carpets, blinds, floor coverings and integrated appliances are included with the sale.
Property Misdescriptions Act 1991.
While these particulars have been carefully compiled and are believed to be accurate, no warranty is given in this respect and potential purchasers should satisfy themselves as to any points airsing therefrom. None of the items included in the sale of working or running nature such as central heating installation or mechanical or electrical equipment have been tested by us and no warranty is given in this respect and potential purchasers should satisfy themselves as to any points arising therefrom. Any photographs used are purely illustrative and may demostrate only the surroundings. They are not therefore taken as indicative of the extent of the property, or that the photograph is taken from within the boundaries of the property, or of what is included in the sale.
Property Misdescriptions Act 1991.
While these particulars have been carefully compiled and are believed to be accurate by O’Malley Property Limited, no warranty is given in this respect and potential purchasers should satisfy themselves as to any points arising therefrom. None of the items included in the sale of working or running nature such as central heating installation or mechanical or electrical equipment have been tested by us and no warranty is given in this respect and potential purchasers should satisfy themselves as to any points arising therefrom. Any photographs used are purely illustrative and may demonstrate only the surroundings. They are not therefore taken as indicative of the extent of the property, or that the photograph is taken from within the boundaries of the property, or of what is included in the sale.