


















Location
Claremont is a sought-after residential location within Alloa, known for its quiet surroundings while remaining close to local amenities, shops, and leisure facilities. The property also benefits from excellent transport links to nearby towns and cities, making it ideal for commuters.
Families will appreciate the property’s position within the catchment area for well-regarded local primary and secondary schools, adding to its appeal as a long-term family home.
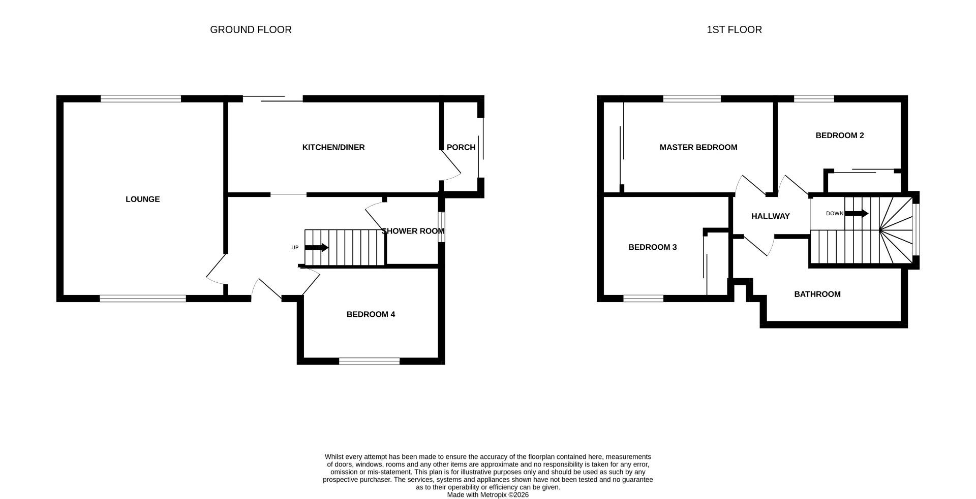
Lounge 5.4m x 4.15m (17’8″ x 13’7″)
Kitchen 5.42m x 2.44m (17’9″ x 8’0″ )
Bedroom 4/Dining Room 3.67m x 2.94m (12’0″ x 9’7″ )
Shower Room 1.81m x 1.58m (5’11” x 5’2″)
Master Bedroom 4.5m x 2.55m (14’9″ x 8’4″ )
Bedroom 2 3.45m x 2.63m (11’3″ x 8’7″ )
Bedroom 3 2.96m x 2.55m (9’8″ x 8’4″)
Bathroom 3.45m x 2.63m (11’3″ x 8’7″)
Home report
The home report is available upon request. Contact our team today.
Fixtures & Fittings
All fitted carpets, floor coverings, blinds, curtains, free standing appliances and light fittings are included within the sale.
Misdescription Act
While these particulars have been carefully compiled and are believed to be accurate, no warranty is given in this respect and potential purchasers should satisfy themselves as to any points arising therefrom. None of the items included in the sale of working or running nature such as central heating installation or mechanical or electrical equipment have been tested by us and no warranty is given in this respect and potential purchasers should satisfy themselves as to any points arising therefrom. Any photographs used are purely illustrative and may demonstrate only the surroundings. They are not therefore taken as indicative of the extent of the property, or that the photograph is taken from within the boundaries of the property, or of what is included in the sale.
Property Misdescriptions Act 1991.
While these particulars have been carefully compiled and are believed to be accurate by O’Malley Property Limited, no warranty is given in this respect and potential purchasers should satisfy themselves as to any points arising therefrom. None of the items included in the sale of working or running nature such as central heating installation or mechanical or electrical equipment have been tested by us and no warranty is given in this respect and potential purchasers should satisfy themselves as to any points arising therefrom. Any photographs used are purely illustrative and may demonstrate only the surroundings. They are not therefore taken as indicative of the extent of the property, or that the photograph is taken from within the boundaries of the property, or of what is included in the sale.