









Location
Brown Crescent, Redding is a popular residential area with excellent day-to-day convenience. A wider range of shops, supermarkets, cafés, leisure facilities and well-regarded schools can be found nearby in Falkirk and surrounding areas. For commuters, Polmont Train Station is close at hand with regular services to Edinburgh and Glasgow, while the M9 is easily accessible. The area also enjoys easy access to countryside walks and local attractions including the Falkirk Wheel and canal paths.
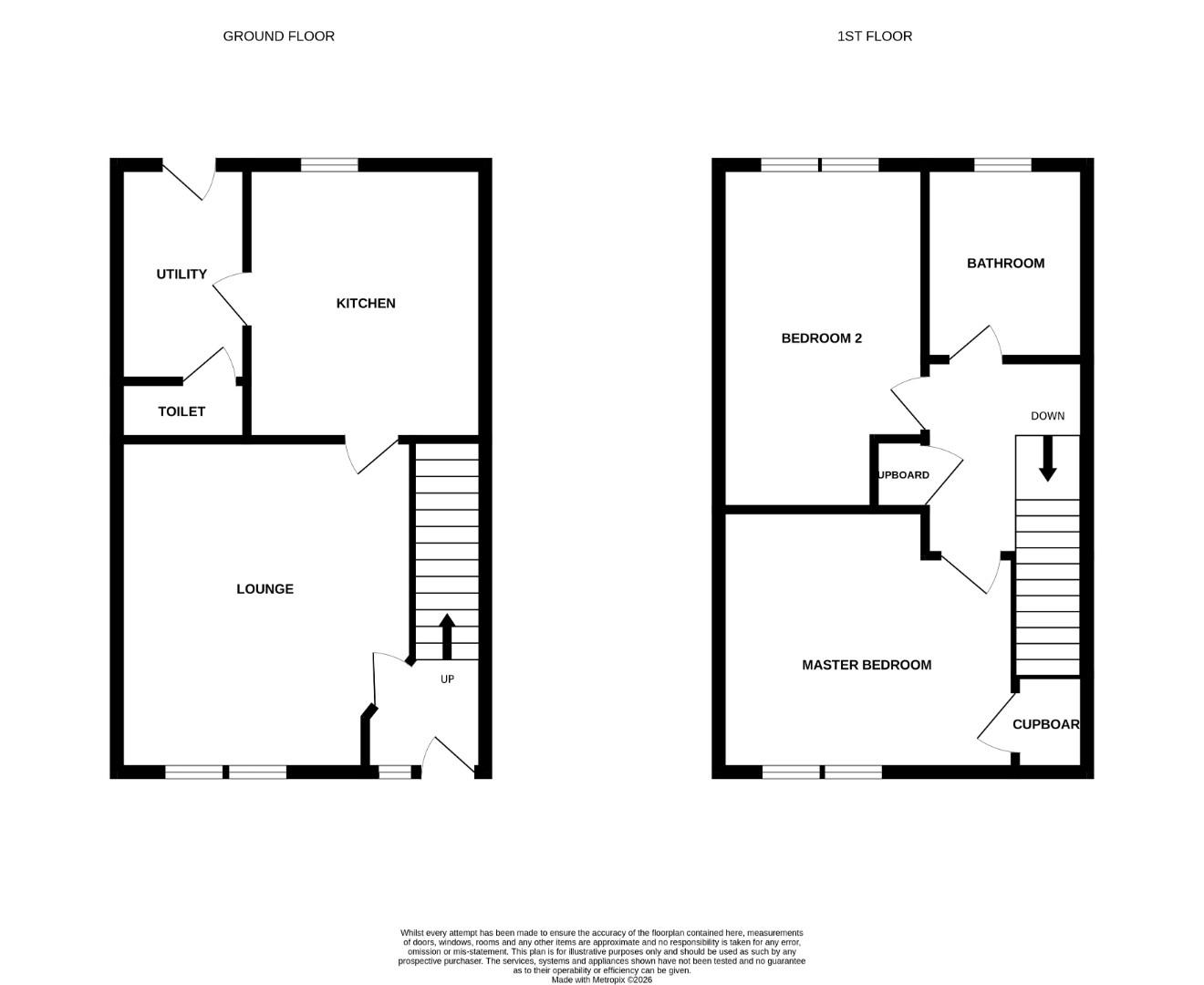
Lounge 4m x 3.37m (13’1″ x 11’0″)
Kitchen 3.2m x 3.186m (10’5″ x 10’5″)
Utility 2.25m x 1.68m (7’4″ x 5’6″)
Master Bedroom 4m x 2.95m (13’1″ x 9’8″)
Bedroom 2 3.99m x 2.94m (13’1″ x 9’7″)
Bathroom 2.92m x 2m (9’6″ x 6’6″)
Home Report
The home report is available upon request.
Fixtures & Fittings
All carpets, floor coverings, light fittings and window furniture are included in the sale.
Property Misdescriptions Act 1991
While these particulars have been carefully compiled and are believed to be accurate, no warranty is given in this respect and potential purchasers should satisfy themselves as to any points arising therefrom. None of the items included in the sale of working or running nature such as central heating installation or mechanical or electrical equipment have been tested by us and no warranty is given in this respect and potential purchasers should satisfy themselves as to any points arising therefrom. Any photographs used are purely illustrative and may demonstrate only the surroundings. They are not therefore taken as indicative of the extent of the property, or that the photograph is taken from within the boundaries of the property, or of what is included in the sale.
Property Misdescriptions Act 1991.
While these particulars have been carefully compiled and are believed to be accurate by O’Malley Property Limited, no warranty is given in this respect and potential purchasers should satisfy themselves as to any points arising therefrom. None of the items included in the sale of working or running nature such as central heating installation or mechanical or electrical equipment have been tested by us and no warranty is given in this respect and potential purchasers should satisfy themselves as to any points arising therefrom. Any photographs used are purely illustrative and may demonstrate only the surroundings. They are not therefore taken as indicative of the extent of the property, or that the photograph is taken from within the boundaries of the property, or of what is included in the sale.