














Location
Beauclerc Street, Alva is a quiet residential street located in the heart of the scenic Hillfoots town of Alva, Clackmannanshire. With beautiful views of the nearby Ochil Hills, it offers easy access to local shops, parks, schools, and walking trails, making it an ideal location for families and those who enjoy a quiet, picturesque setting.
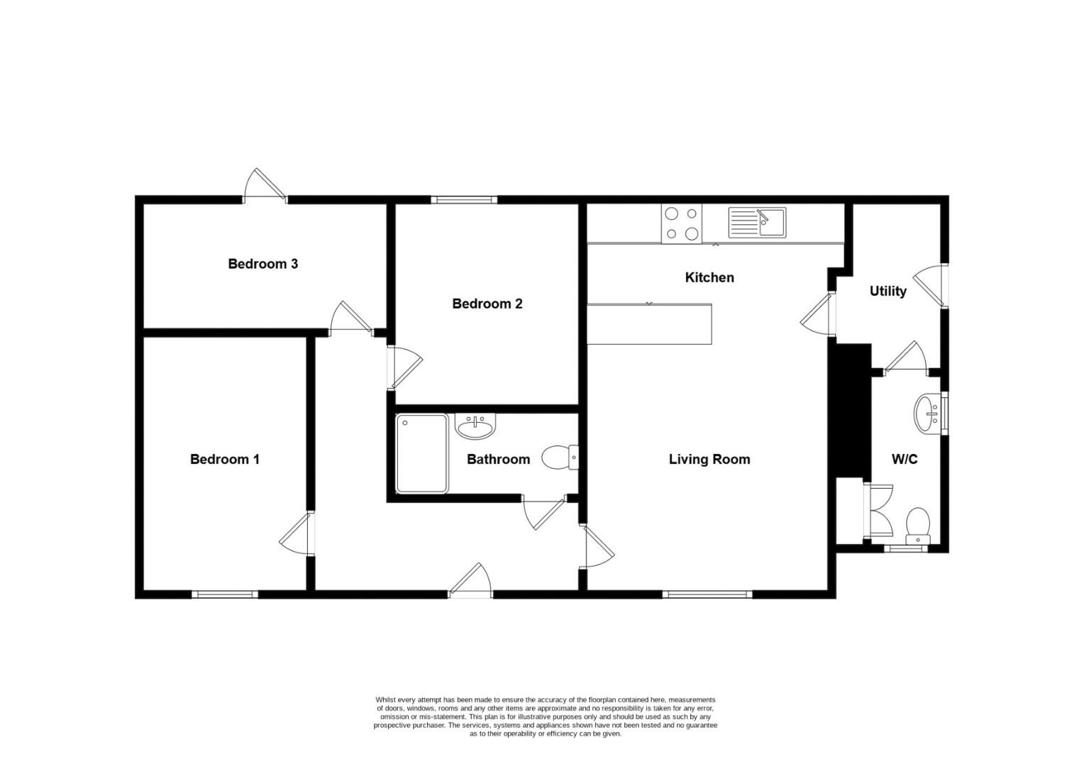
Living Room/Kitchen 5.81m x 3.58m (19’0″ x 11’8″)
Utility 2.45m x 1.04m (8’0″ x 3’4″)
Bedroom 1 3.77m x 2.43m (12’4″ x 7’11”)
Bedroom 2 2.99m x 2.73m (9’9″ x 8’11”)
Bedroom 3 3.62m x 1.86m (11’10” x 6’1″)
W/C 2.50m x 1.04m (8’2″ x 3’4″)
Bathroom 2.68m x 1.21m (8’9″ x 3’11”)
Home Report
The home report is available upon request.
Fixtures & Fittings
All carpets, floor coverings, light fittings and blinds are included in the sale.
Misdescription Act 1991
While these particulars have been carefully compiled and are believed to be accurate, no warranty is given in this respect and potential purchasers should satisfy themselves as to any points arising therefrom. None of the items included in the sale of working or running nature such as central heating installation or mechanical or electrical equipment have been tested by us and no warranty is given in this respect and potential purchasers should satisfy themselves as to any points arising therefrom. Any photographs used are purely illustrative and may demonstrate only the surroundings. They are not therefore taken as indicative of the extent of the property, or that the photograph is taken from within the boundaries of the property, or of what is included in the sale.
Property Misdescriptions Act 1991.
While these particulars have been carefully compiled and are believed to be accurate by O’Malley Property Limited, no warranty is given in this respect and potential purchasers should satisfy themselves as to any points arising therefrom. None of the items included in the sale of working or running nature such as central heating installation or mechanical or electrical equipment have been tested by us and no warranty is given in this respect and potential purchasers should satisfy themselves as to any points arising therefrom. Any photographs used are purely illustrative and may demonstrate only the surroundings. They are not therefore taken as indicative of the extent of the property, or that the photograph is taken from within the boundaries of the property, or of what is included in the sale.