














Location
Acorn Drive is situated within a modern and popular residential development in Tullibody, offering an ideal setting for family living. The area benefits from easy access to a range of local amenities including shops, supermarkets, schools and leisure facilities, while nearby Alloa and Stirling provide a wider selection of retail and dining options. Tullibody is well positioned for commuting, with excellent road links to the central belt and beyond. With its convenient location and strong community feel, Acorn Drive is a desirable place to call home.
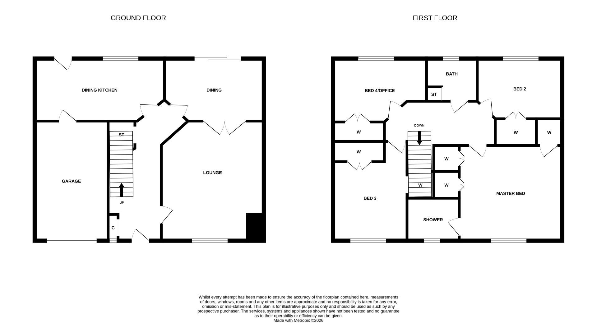
Lounge 5.18m x 4.44m (16’11” x 14’6″)
Dining room 4.3m x 2.71m (14’1″ x 8’10”)
Kitchen 5.62m x 2.71m (18’5″ x 8’10”)
Master bedroom 4.46m x 4.12m (14’7″ x 13’6″)
En-suite 2.26m x 1.84m (7’4″ x 6’0″)
Bedroom 2 3.68m x 2.61m (12’0″ x 8’6″)
Bedroom 3 4.3m x 3.2m (14’1″ x 10’5″)
Bedroom 4 4.04m x 2.75m ( 13’3″ x 9’0″)
Home report
The home report is available upon request.
Fixtures & fittings
All carpets, floor coverings, light fittings and blinds are included in the sale.
Misdescriptions Act
While these particulars have been carefully compiled and are believed to be accurate, no warranty is given in this respect and potential purchasers should satisfy themselves as to any points arising therefrom. None of the items included in the sale of working or running nature such as central heating installation or mechanical or electrical equipment have been tested by us and no warranty is given in this respect and potential purchasers should satisfy themselves as to any points arising therefrom. Any photographs used are purely illustrative and may demonstrate only the surroundings. They are not therefore taken as indicative of the extent of the property, or that the photograph is taken from within the boundaries of the property, or of what is included in the sale.
Property Misdescriptions Act 1991.
While these particulars have been carefully compiled and are believed to be accurate by O’Malley Property Limited, no warranty is given in this respect and potential purchasers should satisfy themselves as to any points arising therefrom. None of the items included in the sale of working or running nature such as central heating installation or mechanical or electrical equipment have been tested by us and no warranty is given in this respect and potential purchasers should satisfy themselves as to any points arising therefrom. Any photographs used are purely illustrative and may demonstrate only the surroundings. They are not therefore taken as indicative of the extent of the property, or that the photograph is taken from within the boundaries of the property, or of what is included in the sale.