- 01259 212 337





















Location
West End Gardens in Alloa offers a tranquil residential setting with excellent access to local amenities and schools. The area is well-served by public transport, with Alloa railway station providing direct connections to Stirling, Edinburgh, and Glasgow, making it ideal for commuters . Residents can also enjoy its close proximity to West End Park. For families, West End Gardens is well-served by educational institutions., falling within Redwell Primary and Alloa Academy catchment areas.
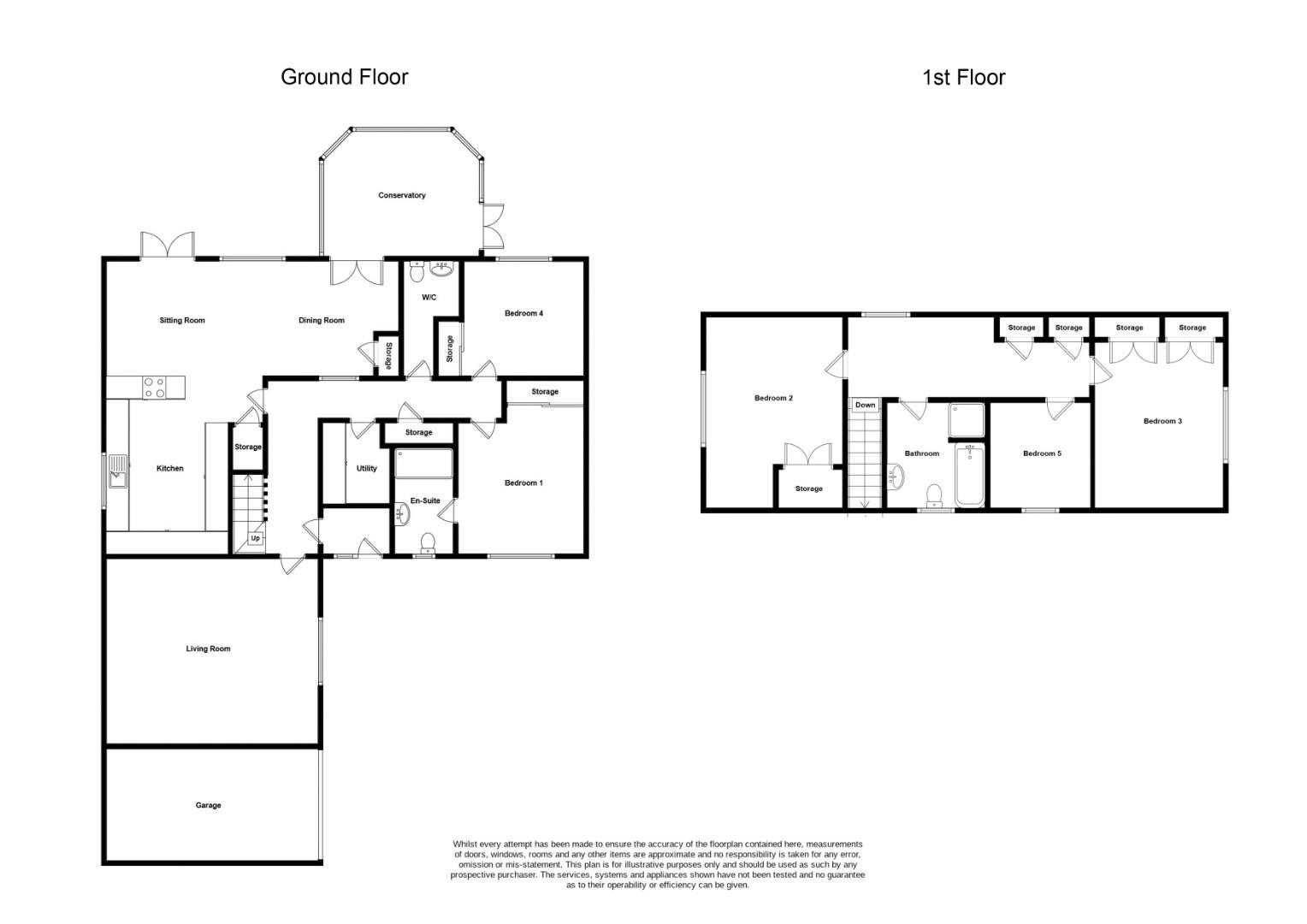
Living Room 5.46m x 4.81m (17’10” x 15’9″)
Sitting/Dining Room 7.59m x 2.99m (24’10” x 9’9″)
Kitchen 4.91m x 3.16m (16’1″ x 10’4″)
Utility 2.10m x 1.46m (6’10” x 4’9″)
W.C 2.97m x 1.45m (9’8″ x 4’9″)
Bedroom 1 3.83m x 3.29m (12’6″ x 10’9″)
En-Suite 2.75m x 1.53m (9’0″ x 5’0″)
Bedroom 2 4.42m x 3.18m (14’6″ x 10’5″)
Bedroom 3 3.85m x 2.99m (12’7″ x 9’9″)
Bedroom 4 3.12m x 2.98m (10’2″ x 9’9″)
Bedroom 5 2.45m x 2.34m (8’0″ x 7’8″)
Bathroom 2.45m x 2.28m (8’0″ x 7’5″)
Fixtures & Fittings
All carpets, floor coverings, light fittings and window dressings are included in the sale
Home Report
The home report is available upon request.
Misdescriptions Act
While these particulars have been carefully compiled and are believed to be accurate, no warranty is given in this respect and potential purchasers should satisfy themselves as to any points arising therefrom. None of the items included in the sale of working or running nature such as central heating installation or mechanical or electrical equipment have been tested by us and no warranty is given in this respect and potential purchasers should satisfy themselves as to any points arising therefrom. Any photographs used are purely illustrative and may demonstrate only the surroundings. They are not therefore taken as indicative of the extent of the property, or that the photograph is taken from within the boundaries of the property, or of what is included in the sale.
Property Misdescriptions Act 1991.
While these particulars have been carefully compiled and are believed to be accurate by O’Malley Property Limited, no warranty is given in this respect and potential purchasers should satisfy themselves as to any points arising therefrom. None of the items included in the sale of working or running nature such as central heating installation or mechanical or electrical equipment have been tested by us and no warranty is given in this respect and potential purchasers should satisfy themselves as to any points arising therefrom. Any photographs used are purely illustrative and may demonstrate only the surroundings. They are not therefore taken as indicative of the extent of the property, or that the photograph is taken from within the boundaries of the property, or of what is included in the sale.